Projekte
Leistungen
Impressum
Planungsbüro Herchenröder
Lunkegarten 8
45277 Essen
FON 0201-585171
FAX 0201-585188
info@pb-herchenroeder.de
Aktuell
Anbau
Entwurf
in Realisierung
Innenraum
Konzept
Neubau
realisiert
Umbau
2011
2010
2009
2008
2007
2006
2004
2003
Haus SB
21/09/11 10:46 Kategorie:
Neubau
|
Anbau
|
Aktuell
Neubau einer Doppelhaushälfte im Bestand
in Essen-Altenessen
in Planung
Modell | Straßenseite
Modell | Gartenseite
Rendering | Gartenseite
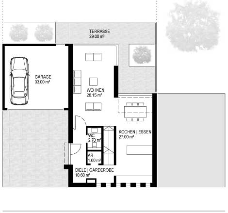
Grundriss | Erdgeschoss
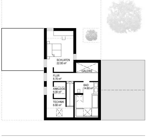
Grundriss | Dachgeschoss
Ansicht | Seite
Schnitt
Rendering | Innenraum